Status: Under Contract
- Area
- 1834 ft2
- Bedrooms
- 2
- Full Baths
- 1
- Days For Sale
- 139
Location
- Area:A Georgetown Area--Black River/northeast of Gtown between Choppee & 51
- City:Hemingway
- County:Georgetown
- State:SC
- Subdivision: Not within a Subdivision
- Zip code:29554
Amenities
Description
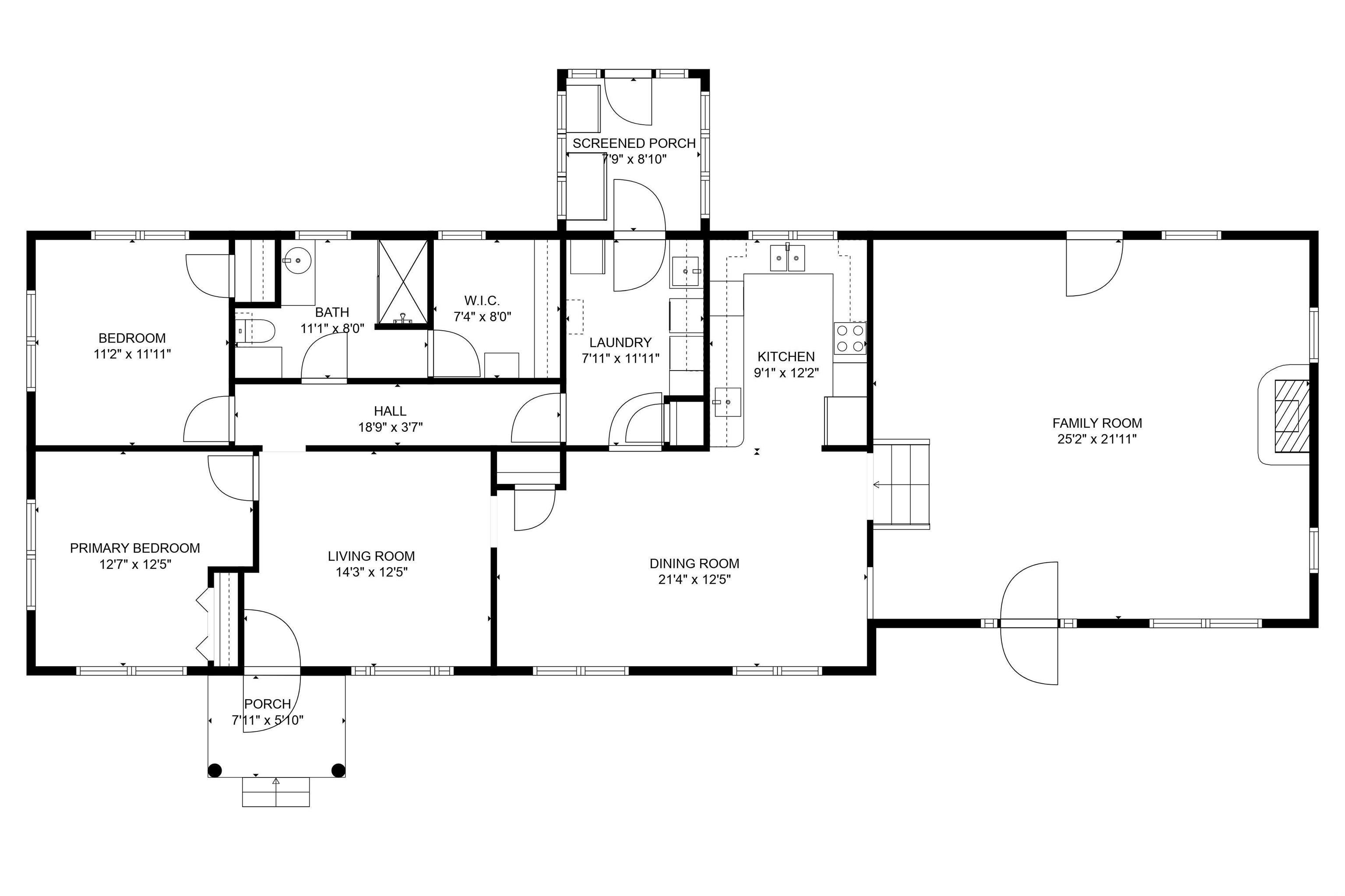
Welcome to this charming and spacious home that blends comfort, character, and functionality throughout. Located in the highly desirable Pleasant Hill community, this property offers the perfect blend of peaceful country living and modern convenience. The exterior features a combination of classic brick and low-maintenance vinyl siding, offering timeless curb appeal. Step inside to discover a unique sunken living room accented by a beautiful brick fireplace with gas logs—perfect for cozy evenings—and double ceiling fans that enhance comfort and airflow. The home boasts a mix of carpet and vinyl flooring, detailed with molding throughout. The kitchen is equipped with quality Kenmore appliances, warm wood cabinets, a convenient double sink, and a ceiling fan to keep the space breezy while you cook. Adjacent, the dining room also includes a ceiling fan and provides an inviting space for meals and gatherings. Storage is plentiful with built-in shelving in the formal living room, a spacious linen closet, and an organized laundry area featuring vinyl flooring, storage cabinets, and a practical mud sink. The sunroom, complete with a ceiling fan, offers a tranquil spot to unwind year-round. The home includes two comfortable bedrooms. Bedroom 1 offers cozy carpeting, a ceiling fan, and built-in shelving, while Bedroom 2 also includes carpet and a ceiling fan. The full bath features vinyl flooring, a vanity sink, a walk-in shower with sleek glass doors, and another linen closet for added convenience. A large walk-in closet with built-in shelving ensures ample storage for your wardrobe and more. Outside, a two-car carport located at the rear of the house provides protected parking and easy access to the home. Don’t miss your chance to own this well-maintained and versatile home—schedule your showing today!
What's YOUR Home Worth?
©2025CTMLS,GGMLS,CCMLS& CMLS
The information is provided exclusively for consumers’ personal, non-commercial use, that it may not be used for any purpose other than to identify prospective properties consumers may be interested in purchasing, and that the data is deemed reliable but is not guaranteed accurate by the MLS boards of the SC Realtors.


















