Status: For Sale
- Area
- 1324 ft2
- Bedrooms
- 2
- Full Baths
- 2
- Days For Sale
- 138
Location
- Area:04B Little River Area--North of Hwy 9
- City:Little River
- County:Horry
- State:SC
- Subdivision: BRIDGEWATER VILLAS
- Zip code:29566
Amenities
Description
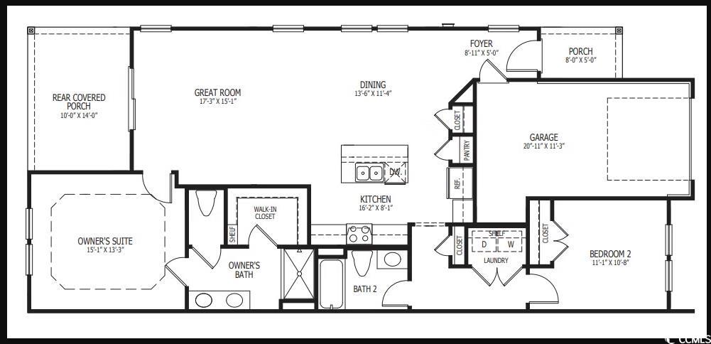
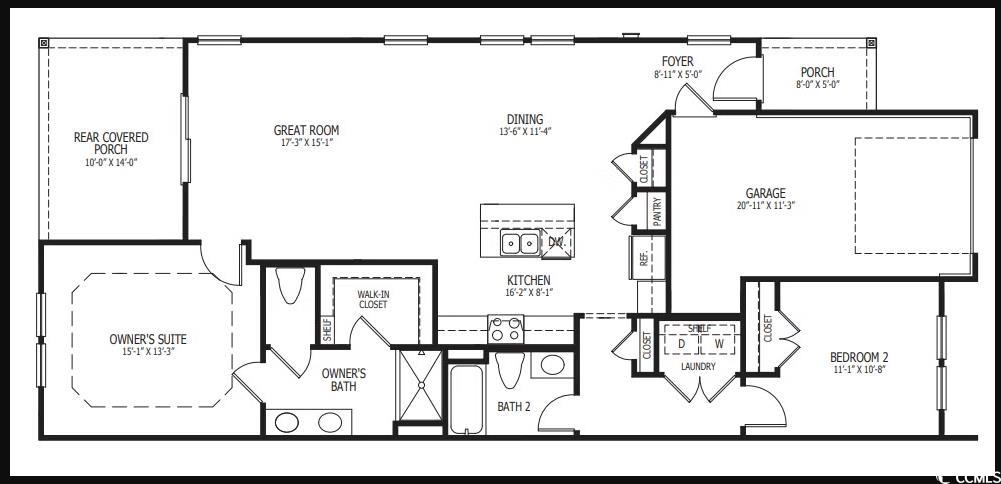
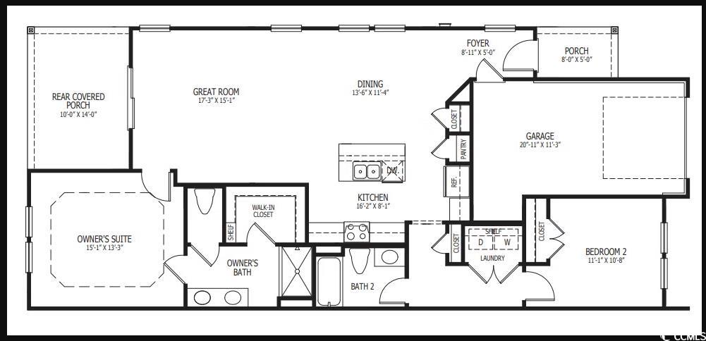
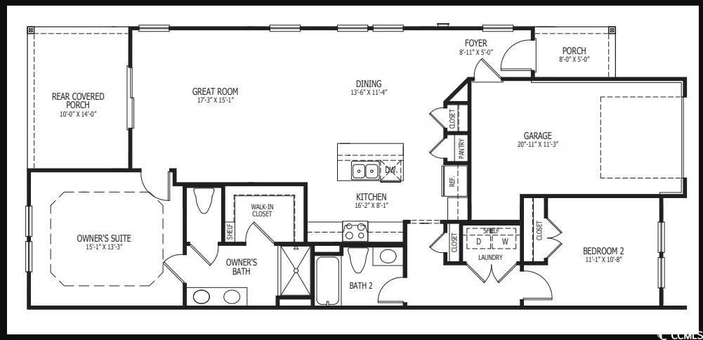
As you enter through the foyer, a door to the garage is conveniently located to your left. Continuing through the home, you’ll discover a spacious kitchen featuring a beautiful island—perfect for hosting holiday gatherings. The kitchen is equipped with a MOEN brushed nickel faucet and a built-in soap dispenser, adding both style and functionality. Prepare delicious meals on your natural gas stove and enjoy memorable family dinners. To the left of the kitchen, a hallway leads to a bedroom at the end, complete with a walk-in closet on your left. On the right, you’ll find a full bathroom with a tub, equipped with elegant MOEN brushed nickel bath accessories and faucets for a modern touch. Moving further into the home, the great room invites you to relax after a long day. Cozy up and enjoy your favorite shows in this welcoming space. But the comfort doesn’t end there! At the rear of the house, the Owner's Suite awaits—a private retreat with an attached bathroom, walk-in closet, and an enclosed toilet room. The bathroom continues the theme of sophistication with MOEN brushed nickel bath accessories and faucets. Welcome to your new life in The Bayside!
What's YOUR Home Worth?
©2026CTMLS,GGMLS,CCMLS& CMLS
The information is provided exclusively for consumers’ personal, non-commercial use, that it may not be used for any purpose other than to identify prospective properties consumers may be interested in purchasing, and that the data is deemed reliable but is not guaranteed accurate by the MLS boards of the SC Realtors.


















