Status: Under Contract
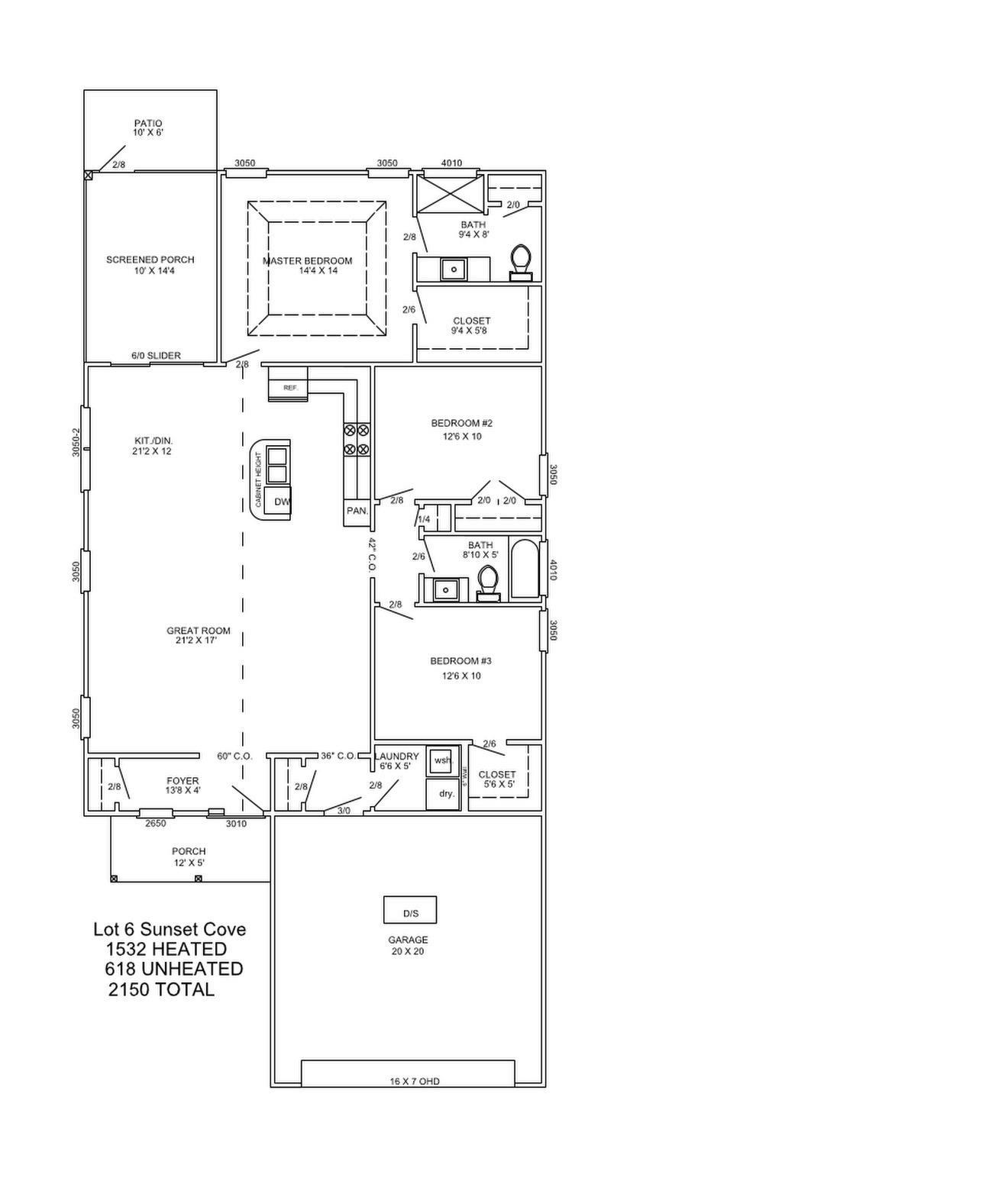
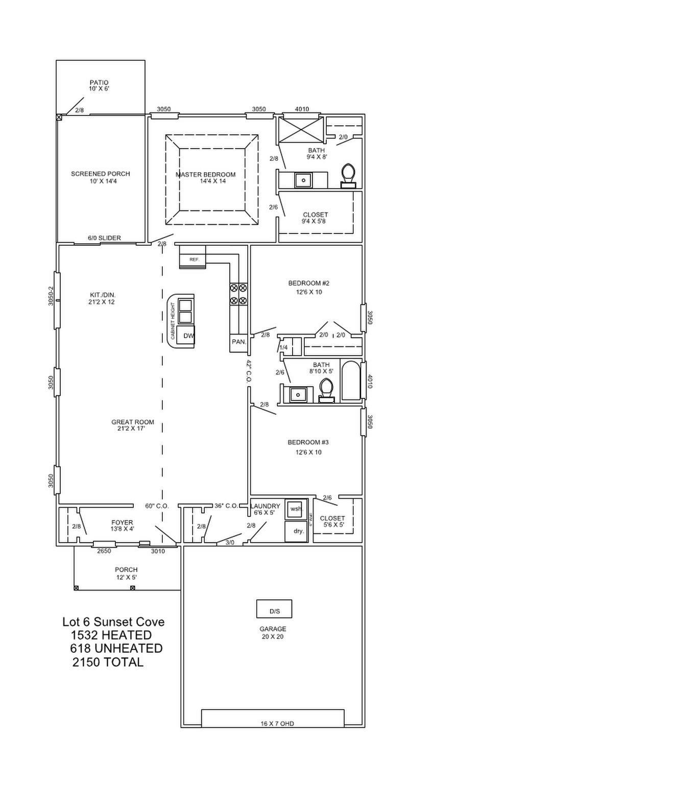
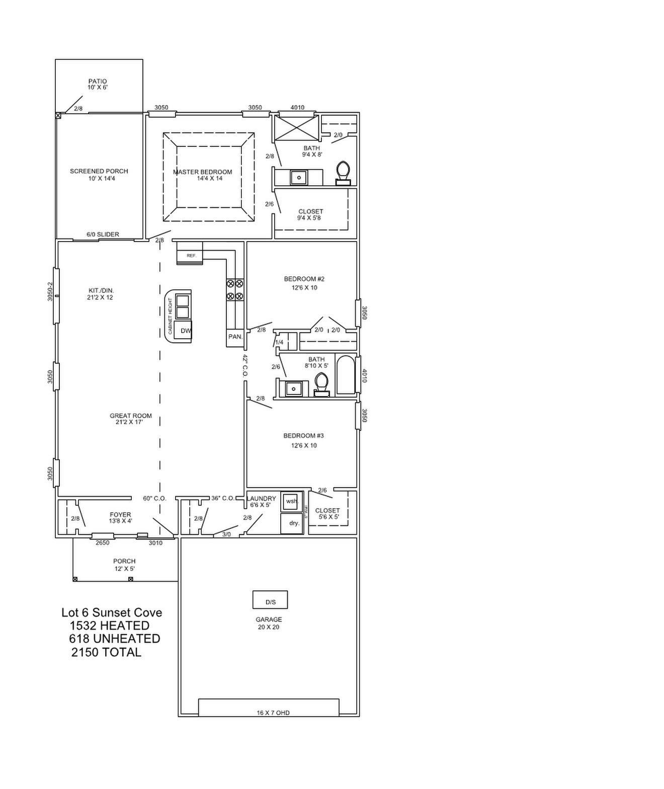
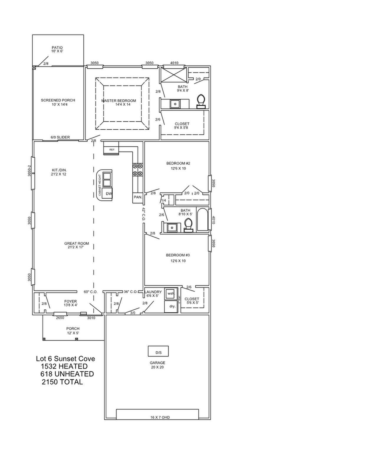
- Area
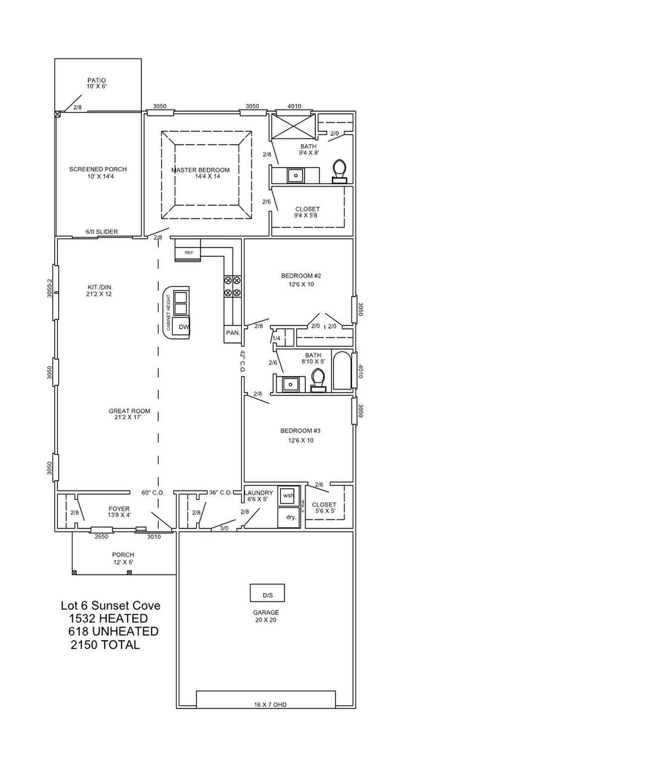
- 1583 ft2
- Bedrooms
- 3
- Full Baths
- 2
- Days For Sale
- 114
Location
- Area:A Pawleys Island Mainland
- City:Pawleys Island
- County:Georgetown
- State:SC
- Subdivision: Sunset Cove
- Zip code:29585
Amenities
Description
This brand-new Low Country cottage-style home showcases timeless design and impressive features throughout. The kitchen features quartz countertops, stainless steel appliances, and a stylish tile backsplash. The master suite offers a tray ceiling, double sinks, a custom tile shower, and tile flooring, creating a true retreat. A covered rear porch extends your living space outdoors, perfect for relaxing or entertaining. This home features many upgrades that most builders don't include. Tucked away in Sunset Cove, a boutique community of just 7 homesites, this home presents a rare chance to enjoy coastal living in the heart of Pawleys Island. Only minutes from the beach, Sunset Cove combines charm and exclusivity with convenient access to shopping, dining, golf, and outdoor recreation. Don’t miss this rare opportunity to own a move-in ready home in one of Pawleys Island’s most charming new communities! Take comfort in one of our newly constructed homes that has a reputation for quality and value. Whether you are a first-time home buyer or looking for your forever home, let us help you through the buying process and welcome you to your newly built home. Building lifestyles for over 40 years, we remain the Premier Home builder of new residential communities and custom homes in the Grand Strand and surrounding areas. In 2023 and 2024, We received the Best Home Builder award from WMBF News Best of the Grand Strand. We began and remain in the Grand Strand, and we want you to experience the local pride we build today and every day in Horry and Georgetown Counties.
What's YOUR Home Worth?
©2026CTMLS,GGMLS,CCMLS& CMLS
The information is provided exclusively for consumers’ personal, non-commercial use, that it may not be used for any purpose other than to identify prospective properties consumers may be interested in purchasing, and that the data is deemed reliable but is not guaranteed accurate by the MLS boards of the SC Realtors.


















