- Days For Sale
- 22
Location
Amenities
Description
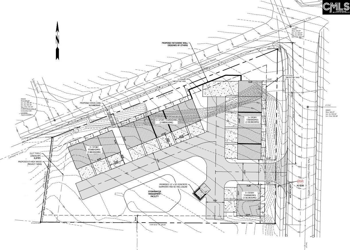
Prime development opportunity in downtown columbia. This corner parcel is in close proximity to the Central Business District, Bull Street mixed-use development, the Vista entertainment district, State House and the University of South Carolina. The site is zoned RM-2, which allows for single-family homes, duplexes, townhouses and apartments. There is no maximum density for townhomes and the site would allow up to 22 units for multi-family. A couple concept plans for townhome development have been created. All utilities are available. Disclaimer: CMLS has not reviewed and, therefore, does not endorse vendors who may appear in listings.
What's YOUR Home Worth?
Schools
K-8 SPED Schools in 29201
PK-10 SPED Schools in 29201
PK-5 SPED Schools in 29201
SEE THIS PROPERTY
©2025CTMLS,GGMLS,CCMLS& CMLS
The information is provided exclusively for consumers’ personal, non-commercial use, that it may not be used for any purpose other than to identify prospective properties consumers may be interested in purchasing, and that the data is deemed reliable but is not guaranteed accurate by the MLS boards of the SC Realtors.
